Project name: Forest Lodge
Typology: Residential
Location: Cornu
Status: study
Client: private
Design Team: TAG architecture:
arh Monica Despina Sache
st arh Andra Nechifor
st arh Elena Toma
Lucian Blaga Highschool competition
Location: Cluj Napoca
Status: Competition proposal
Design team:
arch. Monica Sache
arch. Ana Gogancea
arch. Raluca Stratulat
arch-urb. Constantin Andrei
lands. arch. Maria Marcu
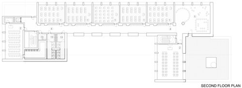
CAMPUS PENTRU TREI GENERATIII
Miza principala a proiectului a fost aducerea impreuna a trei generatii, in stadii evolutive diferite, conform celor trei tipuri de scoli: gradinita si scoala prima (desprinderea de prima etapa ingenua a vietii), alaturi de scoala primara (deslusirea blanda a lumii inconjuratoare), si in cele din urma, cladirea caracterului si setarea viitoarelor idealuri (scoala generala si liceu).
Cheia proiectului nostru se bazeaza pe intuitia faptului ca desi cele trei varste trebuie sa evolueze impreuna, spatiile fiecaruia trebuie dezvoltat in jurul si pe masura sura fiecarei etape de dezvoltare.
Spatiul liceului, cu un aer mai degraba matur si aplicat, se va dezvolta intotdeauna in jurul a doua componente importante, spatii pentru intalnire, socializare, respeectiv studiu: spatiul comun de studiu si receatie din parter si etajele superioare, respectiv biblioteca, ce se desfasoara pe doua niveluri. Accesul liceului devine unul dintre cele mia importante spatii ale cladirii, spatiu deschis, de intalnire si primire.
Salile majore ale corpului sunt dedicate laboratoarelor de fizica, chimie si informatica, fiecare deservit de camere de pregatire si preparare practica.
Principiul “lucrului cu constructia existenta” a fost minima interventie: se debaraseaza anvelopanta de elementele disonante (tencuieli colorate, tamplarii perimate, invelitoarea uzata moral). Se dezvaluie astfel structura primara, se pastreaza ritmul golurilor si spatiile principale, primind acum doar invelisuri noi, cu rol si capacitati tehnice contemporane. Doua aditii se fac insa spatiului, doua corpuri ce nu ntra in dialog cu vechiul construit, doua mase aproape opace, dedicate pe deoparte necesiattilor immediate (Sali medicale, Sali de baie, samd), dar si un spatiu nou, cu personalitate si forma propria: sala bibliotecii.
In zone de evolutie mai apropiate, scoala primara si gimnaziul impart un lot comun, se dezvolta si interactioneaza prin spatiile anume delimitate: piateta cu gardenele la strada, sala mare, care le articuleaza volumele , si locul pentru masa. Gradina le este comuna, si totusi separata: cea apropiata aripii gimnaziului este menita receatiei si invatarii practice (zone de rasad si sere, spatii pentru activitati practice exterioare), respectiv spatiul de joca, cu jorcuri simple, menite a stimula imaginatia si a racori energia copiilor scolii primare.
Scoala primara: clase excentric organizate, in jurul unui nucleu mare- spatiul comun, curtea interioara.
Necesitatea creereii unui climat de siguranta si unor zone libere, totusi usor de observat, adapostit, a condus la delimitarea unui psatiu protejat,delimitat de spatii ritmate, coerente, usor de inteles si parcurs, care sa permita o comprehensiune facila, permitand totodata petrecerea activa, energica. Spatiul omterior se dezvolta vertcial, curtea fiind ascendenta catre cer, deschizandu-se catre orizontul dealurilor.
Gimnaziul: clasa devine nucleul spatiului, in jurul careia se organizeaza intreaga scoala.
Salile de clasa sunt mult mai ample, pentru a permite nu doar acomodarea mia multor elevi, dar si pentru a le pune la dispozitie locuri personale: dulapul, masuta, planseta. Organzarea claselor pe nivel (3-4-5, in parter-etaj 1-etaj2) face ca holul gimanziului sa aiba, pe rand, 3 roluri diferite: in parter ramane liantul inetrior ce aduna toate clasle la sale de mese, in etaj insa, rolul, precum simpozitia sa, se schimba, devine excentric spatiului claselor, deschis catre vest. inundat acum de lumina. Aceasta noua aditie a cladirii, holul generos si bine luminat, devine spatiu de intalnire dar si pentru studiu comun: in etajul 1, el poarta alveolele de studio (puratator de informatii pe suport vizual si practic (harti, diorame); in etajul 2 din hol se desprinde o zona de recreatie si interactiune, din care apoi se delimiteaza, retras, biblioteca si camera de lectura. Camerele principale dinspre nord devin laboratoare de pentru stiinte ( fizica, chimie, biologie, respectiv educatie plastica),
SPORT
La liceu, sala de sport nou propuse, alaturi de functiunea intrinseca, devin prilej, pe de o parte, de intalnire si festivitati, competitii sportive de mici dimensiuni la liceu, supanta sa se deschide peste spatiul de joc si poate adaposti cca 200 de locuri.
Scoala gimanziala si primara impart o sala de sport ,accesibila prin sala mare de access, iar invelitoare sa poarta un teren de sport ce se deschide cartierului.
Materialitate
Cladirile vech primesc un invelis nou, ce dubleaza volumul peretilor exterirori, prin camasuirea elemetelor structural, repesctiv termozilarea si finisarea fatadelor vechi. Astfel, nu se obtine doar o calitate a spatiului interior mai bine protejat, ci si o anumita masivitat, cladirile asezate, echilibrate, ordonate. Standardele de calitate inginereasca sunt indeplinite prin materiale si sisteme ecologilice ( panouri fotovolatice, solare, pompe de caldura) precum si prin fosirea unor sisteme centralizate de ventilatie ce asigura un climat bine controlat pe toata durata anului.
Corpurile de cladire veche sunt solide, poarta texturi noi- la scara mica, delicate, cu rol decorativ, la scoala gimanziala.
CARTIERUL
Intentia interventiei a fost pe de o parte conexiunea cartierului cu orasul, in rpimul rand pentru facilirtarea circulate non-auto Circulatia din cartiere este menita in primul rand oamenilor, pietonilor. Sunt amenajate piste de biciclete, sunt respectate minime nevoi de parcare, se implementeaza solutii de controlarea traficului auto: ingustari si declivitati ale caii de rulare sunt meinte a inectini ritmul, trotuarele insa sunt extinse, primesc alveole de verdetata si aliniament de arbori. Intuind ca, intr-un viitor, poate nu foarte indepartat, se realiza o reamenajare majora a zonei ce va cuprinde noi spatii subterane de parcare, permitand astfel reogarnizare cartierului.
M d’O
Project name: M d’O
Location: Monte d’Oiro, Portugal
Status: Competition shortlisted project
Design team:
arh Monica Despina Sache
st arh Dana Roșca
st arh Raluca Stratulat
st arh Ana Gogancea
Deasupra frumoaselor podgorii folosim elemente de sintaxă spațială care definesc viața urbană și rurală din Portugalia. Urmărind datul natural al terenului, panta, folosim căi înguste între unitățile locative individuale, camerele de hotel, pentru a evoca străzile strâmte, pietruite, din orașele medievale iberice și mediteraneene. Acest lucru oferă un sentiment de intimitate și siguranță, permițând în același timp fiecărui vizitator să se bucure de panorame mari din intimitatea propriei camere, ca o delectare personală. Celelalte spații publice urmează tipologia volumetrică a celorlalte clădiri găsite pe amplasament (o capelă, o cramă). Restaurantul oglindește poziția spațiilor de locuit peste drumul ce le desparte. Acesta este își orienteză priveliștea spre podgorie prin intermediul unei terase ce ține o piscină mare. Terasa este susținută cu pereți structurali mari, o adunare de spații o configurație modulară: săli de conferințe și o sală de mese. Curtea retrasă din spatele capelei oferă spații liniștite în aer liber pentru familii, un spa, o sală de gimnastică și o platformă flexibilă folosită ca teren de joacă, dar și ca loc pentru spectacole și alte evenimente.
Project name: a flowing garden
Typology: Public
Location: Buzău, Romania
Client: Primăria Municipiului Buzău
Design Team: TAG architecture:
arh. Monica Despina Sache,
arh. Ștefan Radocea, arh.urb. Constantin Andrei, stud.arh. Ana Gogancea
Colaboratori:
Rezistență: ing. Teodor Pavlu
Electrice: ing. Adrian Enciu
Termice & Ventilații: ing. Andrei Minteuan
Sanitare: ing. Florin Manga
Sistematizare verticală: ing. Mihai Maleanu
Hidrotehnica: ing. Adriana Hernic
Foto: stud.arh. Raluca Stratulat
Propunere concept curatorial: Laura Nicolae
Proiectul materializează o inițiativă a administrației locale, care și-a propus revitalizarea unei zone urbane făcând recurs la istoria construită a locului. Aria studiată, cu o suprafață de cca 6500mp, se află-ntr-o zona limitrofă a orașului, o limită între unul dintre cartierele de locuințe colective și câmpul deschis. Aflată de-a lungul unei artere intens circulate, mărginita pe o latură de o zonă comercială, pe cealaltă de o biserică, deservește în primul rând zona dens construită a cartierului de locuit. Spațiul devine cu atât mai interesant, cu cât descoperim că redundanta platformă betonată, suport de parcări dezorganizate și depozitari haotice, ascunde vechiul canal de irigație „Iazul Morilor”. Acesta din urmă, o derivație a râului Buzău, marcată în hărțile orașului încă din sec 19, este, însă, presupus a fi construită încă din secolul 16. Folosit odinioară atât în irigarea unor grădini publice din oraș, precum și a curților agricole și a morilor de măcinat ale acestora, a fost trecut de-a lungul timpului pe tronsoane în subteran, iar traseul înverzit ce-l însoțea a fost înlocuit cu sisteme betonate. Intervenția generală mizează pe îmbunătățirea spațiului urban prin amenajarea unei „grădini urbane” care va ameliora calitatea ambientului zonei și care va îmbia la petrecerea timpului în aer liber. Se urmărește stimularea curiozității și interesului locuitorilor față de istoria construită a orașului prin metaforele fruste edificate. Se caută, deci, introducerea ariei in cotidianul locuitorilor, ceea ce va conduce spre o apropriere a spațiului și, de ce nu, poate o redescoperire a „identității istorice” a acestuia și reconstituirea calității sale ca loc al orașului. Imobilul, modest atât în materialitate cât și în mesaj, un volum simplu, arhetipal, amintește de construcțiile odată întâlnite de-a lungul cursului de apă pomenit, prin prezența sa ne-pretențioasă. Funcțional, aceasta va adăposti ateliere de creație, expoziții temporare. Spațiul verde amenajat ce-l înconjoară va completa cartierul de locuințe adiacent, iar ochiurile de apă, alături de obiectul central plasat, vor face trimitere directă către canalul ce odată traversa și alimenta gospodăriile și morile orașului. Structura metalica a imobilului îl face flexibil și ușor de montat, „miezul” ușor de finisat „fără cusătură”, iar învelișul, lemnul păstrat în nuanțe nealterate, își va atinge frumusețea naturala pe măsură ce va îmbătrâni, asemeni vegetației proaspăt plantate.
Publicat/Published in:
Revista Arhitectura- nr 760- 6/2023, decembrie 2023
Bienala de arhitectură de la Veneția ediția 2023, Pavilionul României
VERTICAL HORIZON
Project name: COMPETITION , JULY 2019
Typology: Museum
Location: Dubai, UAE
Status: competition entry
Design team:
arh Monica Despina Sache
st arh Vlad Savulescu
arh Stefan Radocea
curator Laura Nicolae
Proiectul se bazeaza pe ideea de a pune in evidenta posibilitatile oferite de arhitectura pentru a infrunta in mod sustenabil un viitor care are încentru omul cu complexitatea sa atat ca fiinta sensibila/simtitoare, cat si ca persoana sociala, poltica, culturala. Este vorba de o conceptie a omului ca element dintr-o retea, adica ca persoana care interactioneaza cu lumea pastrand radacinile in trecut dar privind spre viitor, in raport constant cu ceilalti membri ai unei socetati deschise, bazate pe interactiune ca mod de a construi cultura, si incadrat intr-un sistem de relatii cu mediul inconjurator care sa dezvolte o folosire etica a resurselor, minimizand impactul asupra mediului inconjurator. Proiectul arhitectonic se inspira dintr/o conceptie liniara si functionala care vrea sa reduca consumul energetic compensand cu sisteme naturale de conditionare a spatiului, care au ca origine vechi practici constructive revizitate prin inovatii tehnice. Se vor folosi resursele naturale precum lumina soarelui ca sistem de iluminare predominant, si apa aerul pentru a refrigera spatiul. Din acest punct de vedere cladirea este gandita ca un loc viu, animat de energiile naturale care pot circula liber in spatiile concepute ca viduri active, locuri de trecere si de potentialitate. Aspectul voit masiv al pavilonului este datorat si folosirii unor pereti extrem de grosi care sa permita mentinerea temperaturii si inlesnesc ventilatia naturala a spatiului, asa cum s-a aratat in proiect. Folosirea resurselor naturale reduce costurile de mentinere si totodată transformarea acestui proiect intr-o cladire accesibila tuturor, respectand un spirit incluziv si extensiv. Spatiul este gandit ca un parcurs, un loc de tranzit, o calatorie cu etape senzoriale care sa-l imbogateasca in mod dinamic si interactiv pe vizitator. Acesta poate constata care sunt elementele tehnice si ideile aflate la baza unor solutii posibile pentru problemele viitorului, inspirand o o cale sau soluție low cost si low impact cu efecte politice, sociale si ambientale. La fiecare etapa a vizitei se stimuleaza unul sau mai multe simturi (perceptia vizuala, auditiva, olfactiva, gustativă si tactila) pentru a avea o experienta la 360° a arhitecturii, asa cum este ea traita in cotidianitate. De asemenea folosirea tuturor simturilor se distanteaza de modalitatea traditionala, tipic vizuala, de expunere a proiectului arhitectonic, aducand un aport surprinzator care va marca vizitatorul prin originalitatea sa, fara sa inlature un aspect ludic din experienta vizitei. Pentru a sublinia caracterul national al proiectului se va pune accentul pe tehnologiile si creativitatea tipic romanesti, dar si pe bogatia resurselor care pot fi folosite in proiecte similare (spre exemplu folosirea apei de mare ca prinicipal promotr al unui sistem de racire natural). Va fi subliniata bogatia culturala a unui trecut care continua sa aiba un raport fecund cu viata contemporana prin elemente senzoriale unele elemente tipice ale traditiei romanesti, nu atat ca obiecte cat ca ritualuri al caror spirit s-a pastrat pana astazi Etape ale vizitei Vizitatorul va fi condus de-a lungul unui parcurs care va face posibila atat descoperirea spatiilor arhitectonice cat si a continuturilor sensoriale si interactive. Prima impresie va fi data de privirea de ansablu a spatiului (...) fatada (...) structura interna (...) De asemenea vizuala dar va fi prezenta a catorva elemente, legate de traditia romaneasca. Toaca, ca simbol al unei vieti comunitare ritualizata si legata de scurgerea timpului, dar si paralelism simbolic si auditiv cu chemarea la rugaciune in contextul islamic, pentru a sublinia o posibilitate de dialog intre cultura romaneasca si cea a tarii gazde. In ore prestabilte va rasuna inregistrarea sunetului tipic al instrumentului. In afara de elementul vizual si auditiv, va fi prezent si elementul tactil, vizitatorii fiind invitati sa atinga exponatul si sa cunoasca calitatile sale percutionale, care vor fi explicate pe o plansa alaturata impreuna cu alte informatii despre obiect. Un alt element vizual va fi un videoambient interactiv bazat pe experimentele din new media art care va capta imaginea vizitatorului creind o umbra virtuala a acestuia si proiectand-o intr-o imagine a horei, formata din siluetele vizitatorilor precedenti, un public variat si international unit intr-o experienta estetica si simbolica. Traditia romaneasca a dansului popular este in acest fel valorizata dar si sublimata devenind o imagine a comunitatii, a colaborarii si a incluziunii. Intr-o alta etapa se va prezenta pe o plansa importanta resurselor naturale care sunt una dintre bogatiile Romaniei, mai cu seama apa care in acest context are un rol fundamental in a pastra o temperatura si o umiditate agreabila in interiorul pavilionului. Vizitatorul va putea observa prin cateva deschizaturi din podeaua primului etaj bazinul de la subsolul cladirii care va contine apa marina cu aceasta functie. Prezenta apei marine, a fantelor din structura de beton, a materialelor de constructie folosite constiuie un semn de continuitate cu mediul inconjurator. Pe intregul parcurs vor fi instalate dispozitie cu parfumuri selectionate ad hoc, ale caror esente vor fi legate de varietatea formelor de relief din Romania, fiecare caracterizata de o flora caracteristica. Vor fi prezente si doua puncte multimediale bazate pe tecnologia touch screen care vor ilustra structura cladirii si functionarea curentilor de aer si de apa pentru mentinerea optimala a temperaturii si umiditatii. Aceasta experienta de e learning va permite vizitatorilor sa inteleaga principiile vehiculate de proiect. In mod coerent cu aceasta conceptie, parcursul va avea drept concluzie un punct de observatie panoramic situat pe acoperisul cladirii (...) care va sublinia ulterior relatia sinergica dintre context si cladire. Proiectul arhitectonic este, in concluzie, un dispozitiv viu, un loc de schimb intre exterior si interior, intre un context international si un aport tipic national, un spatiu de intalnire si interactie care pune la dispozitie posibilitatea unui parcurs ascensional si de cunoastere. Evenimente temporare Pentru a explora simtul gustului in acest context se va organiza un eveniment cu acces limitat in care se vor degusta produse tipice ale traditiei culinare romanesti reinterpretate pentru un public international si cu o abordare contemporana, demonstrand capacitatea de atractie a Romaniei si din punctul de vedere al unei gastronomii care stie sa se inoveze si sa intre in dialog cu alte culturi.~
Project name: H.C.1
Typology: Residential
Location: Bucharest
Client: private
Year: 2021- ongoing
Design team:
arh Monica Despina Sache
arh Constantin Andrei
arh Ștefan Radocea
st arh Vlad Săvulescu
st arh Ana Gogancea
st arh Andra Nechifor
Aflate în stadiu de execuție, cele două proiecte ale noastre, H.C. 1 și H.C. 2, au început de la o situație preexistentă: două imobile similare, proiecte tip, cu planimetrii identice, dar construite în oglindă și, oricum, indiferente față de terenurile ocupate, amplasate într-un cartier nou înființat, limitrof orașului. Dacă loturile au urmărit anumite criterii de conformare și orientare, casele construite în cartier urmăresc un număr limitat de modele, cu spații și volumetrii standardizate. Aparținând familiilor tinere a doi frați, proiectele încearcă să adapteze, prin extindere și supraetajare, construitul cerințelor respectivelor familiilor, precum și siturilor respective. Primul sit, H.C.1., beneficiază de o orientare clară nord- sud, într-o vecinătate compactă (cu vecini stangă- drepta apropiați, cu o deschidere scurtă la bulevard și una către câmp, spre oraș), cel de-al doilea, H.C.2. are o orientare est-vest (într-o intersecție deschisă, cu imobile de diverse tipologii în împrejurimi).
Prima parte: casa deschisă spre oraș
Tema, la care am agreat să răspundem, a fost să croim o locuință adecvată familiei cu doi copii mici, cu nevoi și dorințe specifice, un cămin care să le reflecte personalitatea, cu spații ample și zone funcționale bine delimitate, cu materiale și în tehnologii contemporane. Ceea ce s-a tradus în ample adaptări constructive cu implicații deopotrivă structurale și de instalații. Alegem să “întregim” volumetria, inițial duale, a casei, să adăpostim locuința într-un singur volum, orientat în concordanță cu vecinătățile imediate. Volumul compact urmează un ax longitudinal care, mereu, conduce către spațiul de zi al nivelului, mereu deschis către peisajul dinspre sud. Astfel, spațiul dinspre bulevard, de tranziție (cu vestibul, spații tehnice și depozitări) a devenit tampon între spațiul public, al străzii, și cel privat, al locuinței, primește un singur gol parțial ascuns de un parapet oblic- accesul în casă.
Spații de zi, transparente și deschise către peisajul vast de pe limita sudică, sunt răspândite în parter, etaj și mansardă, conformate după funcționalitatea etajului ce le conține.
Capăt al axului longitudinal, spațiul sufrageriei, din parter, este desfășurat pe toată lățimea casei și se continuă cu spațiul exterior nu doar prin vitrajul integral al fațadei, ci și prin cota de calcare- aceeași cu cea a grădinii exterioare.
Dormitoarele copiilor, din etaj, se deschid prin intermediul spațiului de tranziție transparent corespondent- logia- un fel de grădină ascunsă în etaj.
Cu același mecanism, învelitoarea adăpostește o mansardă cu înălțime amplă.
Project name: H.C.2.
Typology: Residential
Location: Bucharest
Client: private
Year: 2021- ongoing
Design team:
arh Monica Despina Sache
arh Constantin Andrei
arh Ștefan Radocea
st arh Vlad Săvulescu
st arh Mihai Moga Paler
st arh Raluca Stratulat
st arh Andra Nechifor
Aflate în stadiu de execuție, cele două proiecte ale noastre, H.C. 1 și H.C. 2, au început de la o situație preexistentă: două imobile similare, proiecte tip, cu planimetrii identice, dar construite în oglindă și, oricum, indiferente față de terenurile ocupate, amplasate într-un cartier nou înființat, limitrof orașului. Dacă loturile au urmărit anumite criterii de conformare și orientare, casele construite în cartier urmăresc un număr limitat de modele, cu spații și volumetrii standardizate. Aparținând familiilor tinere a doi frați, proiectele încearcă să adapteze, prin extindere și supraetajare, construitul cerințelor respectivelor familiilor, precum și siturilor respective. Primul sit, H.C.1., beneficiază de o orientare clară nord- sud, într-o vecinătate compactă (cu vecini stangă- drepta apropiați, cu o deschidere scurtă la bulevard și una către câmp, spre oraș), cel de-al doilea, H.C.2. are o orientare est-vest (într-o intersecție deschisă, cu imobile de diverse tipologii în împrejurimi).
Partea a doua: casa cu camere-grădini
Adaptarea celei de-a doua case, H.C.2., de asemenea, croite pentru o anumită familie, și nu un beneficiar generic, a presupus în primul rând medierea relațiilor tuturor spațiilor necesare cu exteriorul, vecinătățile, situl.
Capăt de perspectivă al unui bulevard, încă în dezvoltare, și mijloc al unei părți de cartier, încă în plin proces de conturare, fără a avea însă o limită temporală de finalizare predictibilă. Alegem să întregim un singur volum organizat în jurul a două criterii spațiale directoare: primul, spațiul principal, ca funcțiune și gabarit, întotdeauna va avea intimitate față de vecinătăți și va fi deservit de către o cameră exterioară- spațiu geamăn, cu arie comparabilă, ce va putea servi ca o "grădină" a nivelului; și, cel de-al doilea criteriu: spațiul interior va fi dinamic, parcurgere sa va obliga la folosirea alternativă a două scări interioare, cu caracteristici diferite: o scară ascunsă în parter, într-o singură rampă, va conduce în spațiul dormitoarelor din etajul 1, iar una balansată, fără contratrepte, va lega mijlocul etajului de etajul doi.
Cu un acces principal ferit vederii din stradă, spațiul parterului (sau zona de zi principală a casei- "camera mare"- sufrageria și dependințele sale) se deschide către terasa din grădină; similar, spațiul etajului unu adună în jurul propriei "camere mari", spațiile dependente (dormitoarele copiilor și baia lor) precum și camera exterioară- terasa deschisă spre est; cel de-al doilea etaj reprezintă spațiul matrimonial (dormitorul, camera pentru depozitare și camera de baie), iar camera sa exterioară este, de astă dată, deschisă către orașul rămas în sud.
Project name: Restaurant Sfântu Gheorghe
Typology: Commercial, HoReCa
Location: Sfântu Gheorghe, Tulcea, Romania
Client: private
Design Team: TAG architecture:
arh. Monica Despina Sache,
arh. Ștefan Radocea
st. arh. Vlad Săvulescu
st. arh. Ana Gogancea
Un teren mic in centrul comunei Sfantu Gheorghe, Tulcea, devine un loc al opririi, prilej al ospatului dar si un moment de cuprindere a întinderii uscatului și a apei. Clădirea se așază tectonic, cu partea sa "grea", pentru ca pe măsură ce urci închiderile să se rarefieze. Bucătăria, cea care dă sens edificabilului, stă în parter, ținând curtea și purtând încăperile de masă. O scară în colimanson urcă spre spațiul de la primul nivel în timp ce accesul către terasa acoperită se face pe scara "lungă", prelungire a curții. Structura de lemn se dezvăluie în acest ultim nivel al casei pentru ca până atunci să stea în spatele pereților albi tencuiți.
WATER TOWER MUSEUM
Project name: OPEN FOR ALL COMPETITION “TURN DE APA IOSEFIN”, FEBRUARY 2019
Typology: Museum
Location: Timisoara, Romania
Status: Competition third prize
Design team:
arh Monica Despina Sache
st arh Vlad Savulescu
arh Stefan Radocea
Punct de reper in tesutul urban, turnul de apa Iosefin apare ca o ruptura in orizontalitatea orasului. Loc al utilitarului acesta este astazi golit de functiunea sa initiala. Si tocmai aceasta il face memorabil. Golul este cel ce-l umple, absenta devine prezenta. Proiectul isi propune sa pastreze aceasta prezenta tacuta. Urcatul devine motivul principal, ridicarea de la sol te transpune intr-o alta instanta. Acolo sus vezi orasul si poti cuprinde efortul nascut dintr-un bine comun. Interventia asupra turnului este minima. Rezervoarele raman pe locul lor, sunt curatate si vopsite impreuna cu scara metalica ce le strapunge. Scara de beton este si ea curatata, in timp ce platforma de beton de la primul nivel va deveni un loc in care se pot desfasura expozitii si evenimente. Turnul este sustinut la baza de o interventie ce il inconjoara, sustinandu-l atat fizic, prin intarirea fundatiilor acestuia, dar si prin evidentierea incintei ce-l cuprinde. Traseul vertical rapid este acompaniat de o coborare lenta spre un spatiu ingropat aflat la nivelul inferior al talpii fundatiei turnului, fundatii care se dezvelesc si devin parte a inchiderii. Acesta devine principalul loc al desfasurarii diverselor activitati culturale si artistice dar si al expunerii istoriei turnului. Curtea de la cota accesului in turn prilejuieste intalnirea la umbra turnului fiind protejata, pe trei laturi, de peretii din beton pentru a se deschide spre strada si a se orienta spre turn.
Landmark in the urban fabric, the Iosefin water tower appears as a break in the horizontality of the city. The utility's place today is emptied of its initial function. And it just makes it memorable. The void is the one who fills it, the absence becomes the presence. The project aims to maintain this silent presence. Climbing becomes the main reason, rising from the ground transposes you to another instance. Up there you see the city and you can understand the effort born of a common good. The intervention on the tower is minimal. The tanks remain in their place, are cleaned and painted together with the metal ladder that pierces them. The concrete staircase is also cleaned, while the first level concrete platform will become a place where exhibitions and events can take place. The tower is supported at the base of an intervention that surrounds it, supporting it both physically, by strengthening its foundations, but also by highlighting the enclosure that encloses it. The rapid vertical path is accompanied by a slow descent into a buried space located at the lower level of the tower's foundation, foundations that are revealed and become part of the closure. This becomes the main place for the development of various cultural and artistic activities but also for the exhibition of the tower's history. The courtyard from the access level in the tower provides the meeting in the shadow of the tower being protected, on three sides, by the concrete walls to open to the street and to orientate towards the tower.
Project name: Casa Snagov
Typology: Residential
Location: Snagov, Ilfov, Romania
Year: 2015-2016
Status: in progress
Size: 260mp
Client: private
Collaborators: Pavlu Design Construct (structural engineering)
Design Team: TAG architecture:
arh. Monica Despina Sache,
arh. Vitali Andrei Stanila,
arh. Irina Georgescu
Proiectul propus vine in intampinarea dorintelor beneficiarilor, o tanara familie dinamica cu un copil mic.
Imobilul este amplasat in Snagov, pe un teren cu suprafata generoasa, de cca 900mp, in apropierea padurii de stejar. Forma casei este deschisa catre sud, cu vitraje generoase si finisaje simple: peretii sunt acoperiti tencuiala alba si tamplarie de aluminiu, invelitoarea este tabla faltuita gri cu jgheaburi ascunse. Spatiul interior se dezvolta pe parter si mansarda si este finisat cu materiale naturale: pardoaseala este finisata cu dusumea, peretii sunt acoperiti cu tencuiala, intradosul sarpantei acoperit cu lambriu. Suprafata construita este de cca 125mp, cea desfasurata de cca 260mp .
Project name: MC4
Typology: Residential
Location: Constanta, Romania
Year: 2015-2016
Status: in progress
Size: 550mp
Client: private
Collaborators: Concept Structure (structural engineering)
Design Team: TAG architecture:
arh. Monica Despina Sache,
arh. Vitali Andrei Stanila,
arh. Irina Georgescu
In mijlocul unui tesut urban cu valoare istorica, amplasat in centrul Constantei, se propune o noua insertie arhitecturala, un imobil de raport. In suprafata construita totala de cca. 550mp, carora li se adauga 160mp de terase si logii; imobilul alcatuit din doua volume: P+3, respectiv P+4 onoreaza potentialul ofertant al zonei, gabaritele propuse sunt proportionale cu cladirile carora li se vor alatura. Cele doua volume sunt interconectate de o scara exterioara deschisa si o logie. Noua constructie, ce vine, in fapt, in completarea unui imobil P+1 existent, adaposteste cate un singur apartament pe nivel/ corp de cladire.
Project name: Ostasilor 8
Typology: Residential
Location: Bucharest, Romania
Year: 2016
Status: completed
Size: 4500mp
Client: Aquarium Investment
Collaborators: Pavlu Design Construct (structural engineering),
ADClima (HVAC),
D&D Eurocom (electrical)
Design Team: TAG architecture:
arh. Monica Despina Sache,
arh. Mariana Carstoiu,
arh. Andrei Moldoveanu,
arh. Irina Georgescu,
arh. Vitali Andrei Stanila
Constructor: Bog'Art
Photography: Vlad Eftenie
Awards: Romanian Building Awards - Honorable Mention
Imobilul este amplasat în zona centrală a orașului, într-un țesut tradițional difuz, în care se protejează valorile arhitectural urbanistice, istorice și mediul natural în ansamblul lor: trama stradală, fondul construit.
Zona are standard ridicat din punct de vedere al calității locuirii și o atmosferă pitorească, fiind totodata în imediata vecinătate a parcului Cișmigiu. Aflat la confluenta unor zone cu caractere diametral opuse: limita centrului vechi- Cișmigiu, ce îndeamnă către o atitudine temperată, poate nostalgică, respectiv vecinătatea proaspătului și controversatului bulevard Uranus, ce împinge către exuberanta oricărui nou început.
Ținând cont de standardele arhitecturale, clădirea trebuie să răspundă unor cerințe de temă impuse de investitori, ale căror criterii sunt în primul rând de ordin economic- pragmatic.
Se demarează un studiu urbanistic zonal, condus de un colectiv validat de branșă, ale cărui concluzii conduc la elaborarea unui set de reglementări urbanistice cărora imobilul propus trebuie să se subordoneze.
Ne revine sarcina de a analiza caracterul specific zonei dar și a potențialului său, iar în urmă decantării încercăm să aflăm caracterul clădirii ce va fi să fie zidită, o concluzie lucidă și urban responsabilă, care trebuie să fie valabilă atât pentru investitor cât și pentru arhitect. Răspunsul nostru arhitectural ține cont de cerințele beneficiarului pragmatic, încearcă să fie economic lucid fără să nege calitățile contextuale, nici să se subordoneze orbește. Aducem o interpretare modernă a atributelor fondului construit existent, ne dorim ca volumul nou să intre într-un dialog firesc cu existentul, evităm relații de tip subordonare/ opresiune ori antagonic/ mimetism.
Pentru medierea cerințelor urbane și a vecinătăților aparte, mixtura de volume mari (P+6) și a celor foarte mici (P), aliniate unei străzi de dimensiuni medii, imobilul propus preia una din temele arhitecturii moderniste: volumetria în terase; astfel, imobilul se retrage succesiv de la aliniamentul stradal pe măsură ce înălțimea crește către latura deschisă înspre bulevardul Cobalcescu, menținând astfel regimul de înălțime al clădirilor învecinate și construind atât cât face investiția justificabilă.
Imobilul este obligat a-și face loc între limitele rigide impuse: calcanele celor două imobile vecine, aliniamentul stradal de respectat, retragerile succesive, menținerea gradului de iluminare naturală a spațiilor interioare devine provocarea principală. Trebuie hotărât care sunt funcțiunile ce pot fi private complet de lumina, care este nivelul minim de lumina pentru a creă atmosfera placuta în spațiile locuibile, cum trebuie conformate spațiile inundate de lumina.
Folosind o structură realizată din dala groasă de beton susținută de un număr minim de pile de beton, obținem suprafețe generoase de nivel eliberate de constrângeri structurale; astfel, spațiile planseelor devin planuri libere ce se pot reinventa în funcție de scenariile imaginate de investitor ori de beneficiarul final: apartamente minimale ori generoase, apartamente de colț ori cu dublă orientare cardinală.
Se renunță la orice finisaj- textură cu rol intrinsec decorativ sau ornamental, folosim doar materiale de fațadă simple, tencuieli albe, sticlă și metal mătuit, mizăm pe caracterul sculptural al volumului și pe grafica desenată de micile subansambluri: balcoanele franceze sunt pliate și devin mici logii ce ritmează fațadă; parapeții metalici ai balcoanelor sunt elansați și devin limite tari, parapeții de sticlă au transparența controlată și decorează cu hașură fină de umbre fațada, prin punctele serigrafiate; copertinele metalice ce separă nivelurile superioare trasează linii de umbre pe terasele retrase.
[EN]
The building in Ostasilor 8 is located in a diffuse, traditional urban fabric of central Bucharest, in which the urban architectural, historical values and the natural environment are protected in their entirety, street texture and built environment alike.
The area has a high living standard and a scenic air and is located at the convergence of neighborhoods with diametrically opposite characters. On the one hand, the limits of the old city center and Cismigiu Gardens (historically the oldest designed park in Bucharest) point towards a moderate, maybe nostalgic approach, on the other, the proximity of the new and controversial Uranus Boulevard, whose inception has caused a stir due to demolitions of old, derelict areas, pushes towards the exuberance inherent to any beginning.
Taking the architectural standards into consideration, the building had to respond to a brief imposed by the investors whose criteria were first and foremost economically and pragmatically driven.
Thus, following an extensive urban study which elaborated a set of guidelines to which the building had to comply, the remaining task was to analyze the existing qualities of the contextural surroundings, as well as its potential. After the decantation process, the concept, a lucid and urbanistically liable design which had to be valid for the investor as well as the architect emerged.
Our architectural response takes the pragmatic requests of the client into account, tries to be economically rational, without negating the contextual qualities or being blindly conforming. We bring a modern interpretation to the existing built environment, wishing that the new volume enters a natural dialogue with the existent, evading relationships like subordination/oppression or antagonism/mimetism.
Negotiating the urban requirements and the particular vicinities, the mixture of large volumes (ground floor and 6 stories) aligned to a medium sized street, the building takes on one of the themes of modernist architecture, the terraced volumetric.
The building successively retracts from the street alignment while the height rises towards the opening facing Cobalcescu Boulevard, maintaining therefore the height regime of adjacent buildings and erecting as much as the investment is viable.
The building must find its place between strict boundaries - the blind walls of the two neighboring buildings, the street alignment that must be obeyed, and the receding floor rule – thus preserving the natural illumination of interior spaces becomes the main challenge. Which functions can be completely deprived of natural light, what is the minimum light level to create a pleasing atmosphere in the habitable spaces and how do spaces invaded by light have to be configured, remained questions to be answered by the design.
The chosen floor structure is a concrete flat slab sustained by a minimum of concrete pillars which allows for generous areas liberated from structural constraints in a seismically active country; thus the stories become open plans allowing variation in apartment typologies or scenarios of use - minimal or generous apartments, corner apartments or double orientation apartments.
Any intrinsically decorative finishes or textures are forgone. Clean, white surfaces, glass and matte metal are preferred to sustain a sculptural volume and the graphic character of its small units -- the Juliet balconies are folded inwards and become small loggias that create a rhythmic façade; the metallic separators between private spaces are extruded and become hard boundaries, the glass railings have a controlled transparency and paint a soft gradient on the façade through the screen-printed dotting, the metallic blinds separating the superior floors trace fine shadowed lines on the recessed terraces.
Publicat/Published in:
Archdaily - https://www.archdaily.com/879233/ostasilor-8-tag-architecture
Igloo - nr. 175 - decembrie 2016 - ianuarie 2017, pag 62
Divisare
Revista Arhitectura- nr. 678 - 6/2018
Igloo best- Locuințe colective 3, 2018
Project name: Cazarma U
Typology: Re-use, Placemaking, Interior design, Landmark
Location: Timisoara, Romania
Status: 2015
Client: Art Encounters
Design Team (co-authorship):
Mensing Timofticiuc Architects & TAG architecture
Awards:
Anuala de Arhitectura Bucuresti - Nominalizare Arhitectura, restaurare, reabilitare, conversie - 2016
BETA Bienala timisoreana de Arhitectura - Heritage Award - 2016
Publicat/Published in:
Project name: Drza
Typology: Residential
Location: Darza, Dambovita, Romania
Status: proposal
Client: private
Design Team: TAG architecture:
arh. Monica Despina Sache,
arh. Vitali Andrei Stanila,
arh. Irina Georgescu
Project name: Casa L
Typology: Residential
Location: Bucharest, Romania
Status: completed
Client: private
Design Team: TAG architecture:
arh. Monica Despina Sache
arh. Andrei Moldoveanu
Project name: RE
Typology: Residential
Location: Bucharest, Romania
Status: proposal
Client: private
Design Team: TAG architecture:
arh. Monica Despina Sache,
arh. Vitali Andrei Stanila
Project name: Twin House
Typology: Residential
Location: Bucharest, Romania
Status: proposal
Client: private
Design Team: TAG architecture:
arh. Monica Despina Sache,
arh. Vitali Andrei Stanila,
arh. Irina Georgescu
Project name: Casa Cernea
Typology: Residential
Location: Bucharest, Romania
Status: proposal
Client: private
Design Team: TAG architecture:
arh. Monica Despina Sache
Project name: Cremenita
Typology: Residential
Location: Bucharest, Romania
Client: private
Design Team: TAG architecture:
arh. Monica Despina Sache,
arh. Andrei Moldoveanu
Project name: Mother and Child Nursery and Care Center
Typology: Healthcare
Location: Abuja, Nigeria
Status: proposal
Client: private
Design Team: TAG architecture:
arh. Monica Despina Sache,
arh. Vitali Andrei Stanila
Project name: Restaurant
Typology: Commercial, HoReCa
Location: Bucharest, Romania
Status: proposal
Client: private
Design Team: TAG architecture:
arh. Monica Despina Sache,
arh. Vitali Andrei Stanila