Project name: STUDY SURVEY , MARCH 2023
Typology: Town House
Location: Bucharest
Status: Heritage Building Survey
Team:
arh Monica Despina Sache
arh Ana Gogancea
arh Raluca Stratulat
stud arh Andra Nechifor
stud arh Oana Ignătescu
Imobilul este situat în zona protejată Eminescu, pe strada Icoanei la numărul 60. Clădirea face parte dintr-un țesut istoric difuz, caracterizat prin situarea centrală și prin sinuozitatea traseului, într-o zonă cu tramă stradală premodernă și funcționalitate actuală mixtă.
Statutul locuinței, construită la începutul secolului XX, este determinat de rigurozitatea soluției și eficiența distribuirii spațiilor, distribuție pe apartamente ce determină utilizarea eficientă a clădirii de mai multe familii în același timp. Oamenii care au trecut pragurile clădirii au beneficiat de privilegiile locuirii în zona centrală a Bucureștiului, și în ciuda degradării treptate de la nivelul fațadelor sau din interiorul casei, se observă atenția acordată elementelor aparente, imediat vizibile: decorațiunea specifică vremii dispusă preponderent către drum și în jurul zonei de acces principal în clădire, poarta de la intrare, detaliile de cornișă și lucarnele șarpantei. Această bijuterie cumpătată a secolului trecut a reușit să supraviețuiască prin atenția acordată de proprietarii care nu au căzut pradă tendințelor mai recente de a demola astfel de clădiri ori a le înlocui cu un alt tip de clădiri, omniprezentele blocuri, așa zise investiții imobiliare.
Clădirea este dispusă în cadrul parcelei în mod specific acestei zone, cu latura scurtă la stradă, pe limita terenului, și latura lungă lipită la calcan, cu loc de grădină lateral în lungul terenului și în spate. Alături de clădirea studiată se află către capătul curții încă o clădire, lipită la cele trei laturi, ambele având funcțiune rezidențială și mai mulți proprietari. Clădirea studiată, monument istoric de clasa B, este cea de la stradă, o casă cu valoare arhitecturală reprezentativă pentru tipologia și perioada edificării.
Partiu
Volumul clădirii principale este distribuit pe 3 niveluri supraterane, la care se adaugă podul, iar la comun un subsol parțial. Fiecare nivel susține câte un singur apartament, iar proprietarii etajului 1 au acces și la spațiile din mansardă, respectiv din pod. Etajul curent este similar distribuit pe cele două niveluri: o cameră centrală de tip hol (în parter) sau living (etajul 1) din care se realizează accesul în toate celelalte spații.
Rezolvare arhitecturală
Decorațiunea de fațadă este modestă, dar pregnantă în zonele cu vizibilitate de la drum, elementele definitorii în acest caz fiind brâul de sub cornișă, rozetele punctuale, de mici dimensiuni, din fațada de la stradă, și întregul ansamblu de detaliu de la nivelul celor două balcoane, cu colonadă în trei registre, cu elemente originale de capitel. Clădirea se poate încadra într-un stil eclectic cumpătat, cu influențe neoromânești.
Casa I. S. Floru
Project name: STUDY SURVEY , MAY 2019
Typology: House
Location: Bucharest
Status: Heritage Building Survey
Team:
arh Monica Despina Sache
stud arh Bianca Roșescu
stud arh Diana Stanciu
Imobilul este situat în zona protejată Polonă, pe strada Aurel Vlaicu la numărul 115. Clădirea face parte dintr-un țesut istoric difuz, într-o zonă rezidențială tradițională definită de străzi cu traseu neregulat, volumetrie diversă din punct de vedere tipologic, însă coerentă prin înălțimi și limbaj arhitectural.
Imobilul reflectă statutul proprietarilor care l-au construit, personalități notabile ale intelectualității românești. În ciuda degradărilor ce au survenit în acest timp, memoria locului a păstrat o parte a istoriei încă în viață și a supraviețuit tendințelor anilor 90-2000 de înlocuire a comorilor arhitecturale de altă dată cu inserții agresive, eficiente din punct de vedere economic pentru dezvoltatorii locali și pentru fostii proprietari. Pe străzile din imprejurime se pot observa aceste inserții, unități locative cu multe etaje, așezate strâmtorat între bijuterii dărăpănate ale secolului trecut.
Parafrazând studiul istoric al Cezarei Mucenic pentru clasarea imobilului in statutul de monument, aflam că:
“În decursul anilor, casa din Aurel Vlaicu a reprezentat un punct de atracție și întâlnire al multor personaje culturale celebre din anii ante și interbelici. Aici s-au strâns cu diferite ocazii majoritatea oamenilor de cultură de la începutul secolului trecut până prin 1970. Printre aceste figuri remarcabile se numără și Titu Maiorescu, Vasile Pârvan, Contantin Noica, Mircea Eliade, Cecilia Cuțescu Stork, ș.a. Casa a fost aproape un veac un spațiu rezervat culturii și patriotismului în formele lor elevate. Astăzi casa deservește scopuri rezidențiale.
În cadrul cercetărilor de arhivă, au fost identificate documente care atestă momentul exact al construirii imobilului în cauză. În 1914 se cere de către proprietarul parcelei din strada “Aurel Vlaicu fostă Țăranilor 115” emiterea unei autorizații de construcție:
“Construcția ce voiesc a face: Un corp de clădire cu etaj cf. planurilor în număr de 8 piese în două exemplare, pe care le alătur […] întocmit și semnat de dl. Mihail Ioanid de profesie arhitect”.
Ocuparea terenului și modul parcelării specific zonei rezultă în funcție de importanța arterei pe care acestea se află: parcelele de mărime medie și formă rectangulară erau ocupate de construcții amplasate în partea dinspre stradă cu retrageri variabile.
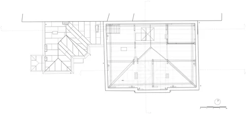
Rezolvarea arhitecturală
Volumul clădirii inițiale a rămas neschimbat după planurile proiectului atașat cererii de autorizare inițiale. Amplasarea pe lot s-a făcut în a doua jumătate a terenului, lasând în față, către drum, spațiu pentru o grădină. Clădirea este compusă din 2 volume distincte legate de un al treilea de mică dimensiune cu rol de legătură și separare a celor două zone funcționale: casa principală și dependințele, fiecare cu acoperiș propriu. Separarea clară dintre cele două părți de clădire au mai determinat și diferența de volum (corpul principal este mai înalt) și diferența de tratare a acoperișului, (înalt tip mansardă la corpul principal).
Structura
Fundațiile sunt realizate din beton cu mortar de ciment, pivnița cu bolțișoare de cărămidă. Zidăria de cărămidă este lucrată cu mortar de “var gras”, la fel ca tencuielile de fațadă care apoi sunt drișcuite cu praf de piatră albă. Soclul este drișcuit cu ciment. Învelitoarea a fost schimbată dupa cutremurul din 1977 era compusă inițial din tablă plumbuită Wolf Netter Iacobi de 12mm, cea laterală din ardezie în formă de solzi, iar bordura din zinc nr. 12.
Partiul
Corpul principal a fost conceput cu o funcțiune dominantă pe fiecare dintre nivelurile sale. Parterul împlinea funcția de reprezentare, fiind compus din ante vestibul, hol central sau vestibul, scara monumentală pe peretele de nord, salonul, biroul cu nișă pentru bibliotecă - cele două camere fiind situate pe latura de est către stradă, apoi sufrageria urmată de oficiu și culoare către aripa dependințelor.Etajul era rezervat exclusiv zonei private, fiind compus din vestibul, 4 dormitoare și baie.
Corpul secundar, aripa dependințelor, este compus din pivniță, bucătărie și spălătorie în parter și camera de musafiri, două camere de servitori și pasaj de trecere între cele două corpuri în etaj.
Partiul actual al casei reflectă realitatea concretă a comunismului, când familia care a construit-o a fost deposedată de casă, iar spațiul acesteia a fost împărțit pentru a adăposti mai multe familii. Astfel logica noii împărțiri a camerelor pare a contraveni ideii inițiale; scara își pierde rolul principal și ținuta în raport cu parterul; iar accesul principal este dublat de unul aproape improvizat, care duce, acum, doar la etaj, trecînd printr-un hol îngust și lung. Ceea ce obișnuia să fie odinioară o casă orășenească a unei familii cu multiple preocupări, și spațiul necesar în care să și le desfășoare, devine în acea perioadă oglindă a funcționalismului rigid, iar suita de încăperi fastuoase, deodată reprezintă un exces și este secționat și distribuit în două apartamente.
Fațadele
Ferestrele se diferențiază prin modul în care sunt tratate, devin elemente ce subliniază din exterior importanța spațiilor interioare. În parter, golurile ce corespund încăperilor cu rol de reprezentare dispun de ancadramente și decorațiuni centrale deasupra cărora se mai compun și alte panouri decorative. La etaj, ancadramentele și consola sunt simple. Pe fațada către stradă, golurile ușilor de la parter sunt rezolvate similar în ce privește ancadramentele și elementele de decorare a lor.
Decorarea clădirii este completată de tratarea fațadelor cu sugestie de bosaje la care contribuie și materialul folosit, și cornișa lată, decorată cu denticuli și muluri.
Intrarea principală este așezată central pe fațada de sud este subliniată de traveea în decroș, ușa din lemn, sticlă și fier forjat cu o copertină, și detalii puternic decorative deasupra. Tot deasupra ușii sunt dispuse două ferestre pe un zid ce susține o formă ușor curbată, mai multe elemente spe4cifice suprapuse, precum medalioane și ghirlande, terminându-se în partea de sus cu un atic înălțat.
Casa aparține tipului de clădire construită la începutul secolului XX pentru locuirea individuală de bună calitate, fiind superioară ca soluție de amplasare, gabarit, tratare arhitecturală tipologiei existentă în zonă. Clădirea se încadrează stilistic expresiei eclectismului de factură modernă mult mai sobru și reținut în folosirea elementelor decorative, expresie care a pregătit trecerea către arhitectura modernă din perioada interbelică.
INTERVENȚIE
Se propune reabilitarea clădirii cu valoare de monument istoric și amenajarea podului existent, cu transformarea acestuia în mansardă locuită în urma unor intervenții de natură structurală și de partiu.
Elementele decorative ale casei precum tencuiala, parapeții metalici și balcoanele sunt degradate, prezentând fisuri, exfolieri și infiltrații. Similar, tâmplăria originală păstrată în etaj prezintă semne puternice de degradare, în timp ce tâmplăria din parter a fost înlocuită deja de către proprietari.
La nivelul apartamentului din parter nu se vor face modificări, însă apartamentul din etaj are accesul printr-un hol adiacent acestui apartament, realizând legătura cu etajul prin scara monumentală menționată precedent. Starea finisajelor interioare este nefavorabilă.
Se propun reparații la nivelul fațadei (tencuială și decorațiuni), la nivelul parapeților, balcoanelor și tâmplăriei, reparația terasei din parter și a scării exterioare de acces în proprietatea apartamentului din etaj.
Se propun înlocuiri, precum cea integrală a învelitoarei cu reparație la nivelul structurii șarpantei (unde este cazul) fără a modifica volumul. Inlocuirea tâmplăriei se va realiza în cazul în care reparația nu mai este posibilă, cu sistem de tâmplărie din lemn stratificat cu geam termopan păstrând desenul cercevelor.
La interior se va realiza reparația holului de intrare și scării cu rezolvarea problemelor structurale și a infiltrațiilor de la pereți și din pardoseală. La etaj se dorește reabilitarea finisajelor și a straturilor suport, recompartimentarea spațiilor de scară către mansardă și baie, iar in mansardă se va termoizola șarpanta, reconstrui pardoseala , înlocui luminatorul de peste scara monumentală și reconstrui lucranele proiectului inițial care în prezent lipsesc.
Între locul imaginar și locul trăit
Ed. Universitară "Ion Mincu", București, 2020
ISBN 978-606-638-285-4 72
Author:
dr arh Monica Despina Sache
Preface:
prof. emerit. dr. arh. Daniela Rădulescu Andronic
Design & DTP:
Denisa Simionescu
Photos:
arh Vlad Eftenie
arh Raluca Stratulat
arh Monica Sache
Graphics:
arh Ana Gogancea
arh Raluca Stratulat
arh Monica Sache
Sketches:
arh Monica Sache
Cartea reprezintă o continuare a tezei de doctorat, pe tema regenerării urbane contemporane, susținută în 2020. Centrul său de interes este aprofundarea unuia dintre cele mai delicate concepte, pe rând „motivație”, „rezultat”, ori „justificare”, ale arhitecturii: locul.
Alcătuită asemeni studiului premergător unui proiect de arhitectură cu „analiză teoretică”, „documentarea contextului”, cu „studii de caz- exemple relevante”, păstrează concluziile deschise, asemeni subiectului ales, în continuă și perpetuă schimbare.
Textul a izvorât dintr-o serie de întrebări privitoare la relația (ne)construitului cu situl și devenirea acestuia ca loc, precum și, reciproc, influența locului, ca sit încărcat de informație și însemnătate, asupra noului (ne)construit. Studiul de caz ales, subiectiv, este Berlinul, pentru impactul puternic, pe care l-am resimțit la fiecare din vizitele succesive, și care s-a transformat din curiozitate de moment în interes, acutizat cu fiecare nouă informație descoperită.
Dacă textul nu pretinde a fi mai profund decât o documentare obiectivă, pe cât posibil de cuprinzătoare, conținutul ilustrat este un studiu în sine, și reprezintă un fel de comentariu- eseu prin imagine, despre proiectele selectate. Devine, astfel, mai bogat în informații și sens, mai mult decât o unealtă indispensabilă a volumului, care nu ar fi putut exista fără el.
Sensul “locurilor” este, în cele din urmă, pus pe seama edificiilor lor: fie trecute și pierdute în timp (ilustrate prin imagini și planuri de arhivă), fie a variantelor alternative (schițe ale proiectelor necâștigătoare, propuse în concursurile de arhitectură), fie construite și vizitabile (planuri ori fotografii ale edificiilor construite ori ale intervențiilor în neconstruit); și privite prin prisma unor metafore atribuite subiectiv, așa cum le-am receptat în repetatele noastre întâlniri.
Studiul rămâne deschis, nu doar pentru viitoare, posibil diferite interpretări și percepții ale locurilor odată vizitate, ci, pentru promisiunea de a începe un studiu similar a locurilor bucureștene.
The book is a continuation of the doctoral thesis, on the topic of contemporary urban regeneration, defended in 2020. Its center of interest is the deepening of one of the most delicate concepts, in turn "motivation", "result", or "justification", of architecture: the place.
Composed like the preliminary study of an architecture project with "theoretical analysis", "documentation of the context", with "case studies - relevant examples", it keeps the conclusions open, as its chosen subject, in continuous and perpetual change.
The text arose from a series of questions regarding the relationship of the (un)built with the site and its becoming as a place, as well as, reciprocally, the influence of the place (as a site loaded with information and significance) on the new (un)built. The chosen case study, subjectively, is Berlin, for the strong impact, which I felt on each of the successive visits, and which turned from momentary curiosity into interest, sharpened with each new piece of information discovered.
If the text does not pretend to be deeper than an objective documentation, as comprehensive as possible, the illustrated content is a study in itself, and represents a kind of commentary-essay through image, about the selected projects. It thus becomes richer in information and meaning, more than an indispensable tool of the volume, which could not have existed without it.
The meaning of "places" is, in the end, attributed to their edifices: either passed and lost in time (illustrated by archival images and plans), or of alternative versions (sketches of non-winning projects, proposed in architectural competitions), either built and visitable (plans or photos of built buildings or interventions in the unbuilt); and viewed through the lens of subjectively attributed metaphors, as we received them in our repeated meetings.
The study remains open, not only for future, possibly different interpretations and perceptions of the places once visited, but for the promise of starting a similar study of the Bucharest places.
COMUNITATE PENTRU COMUNITATE
Project name: COMUNITATE PENTRU COMUNITATE, SNAGOV, 2025
Typology: rural intervention, community spaces
Location: Snagov
Status: on going study
Team:
arh Monica Despina Sache
stud arh Andra Nechifor
__ market study
stud arh Elena Toma
__market study
stud arh Dorina Pîrvu
__community pool study
stud arh Vladimir Popa
__community pool study
stud arh Mihai Enache
__3D print
stud arh Sara Meca
__graphics